Выберите шрифт Arial Times New Roman
Интервал между символами (кернинг): Стандартный Средний Большой
| Сведения о предмете торгов (продаваемом имуществе) | ||||
| № предмета торгов | Наименование, характеристики и местонахождение продаваемого имущества | Начальная цена продажи, (с учетом НДС), бел. руб. |
Размер задатка, бел. руб. |
|
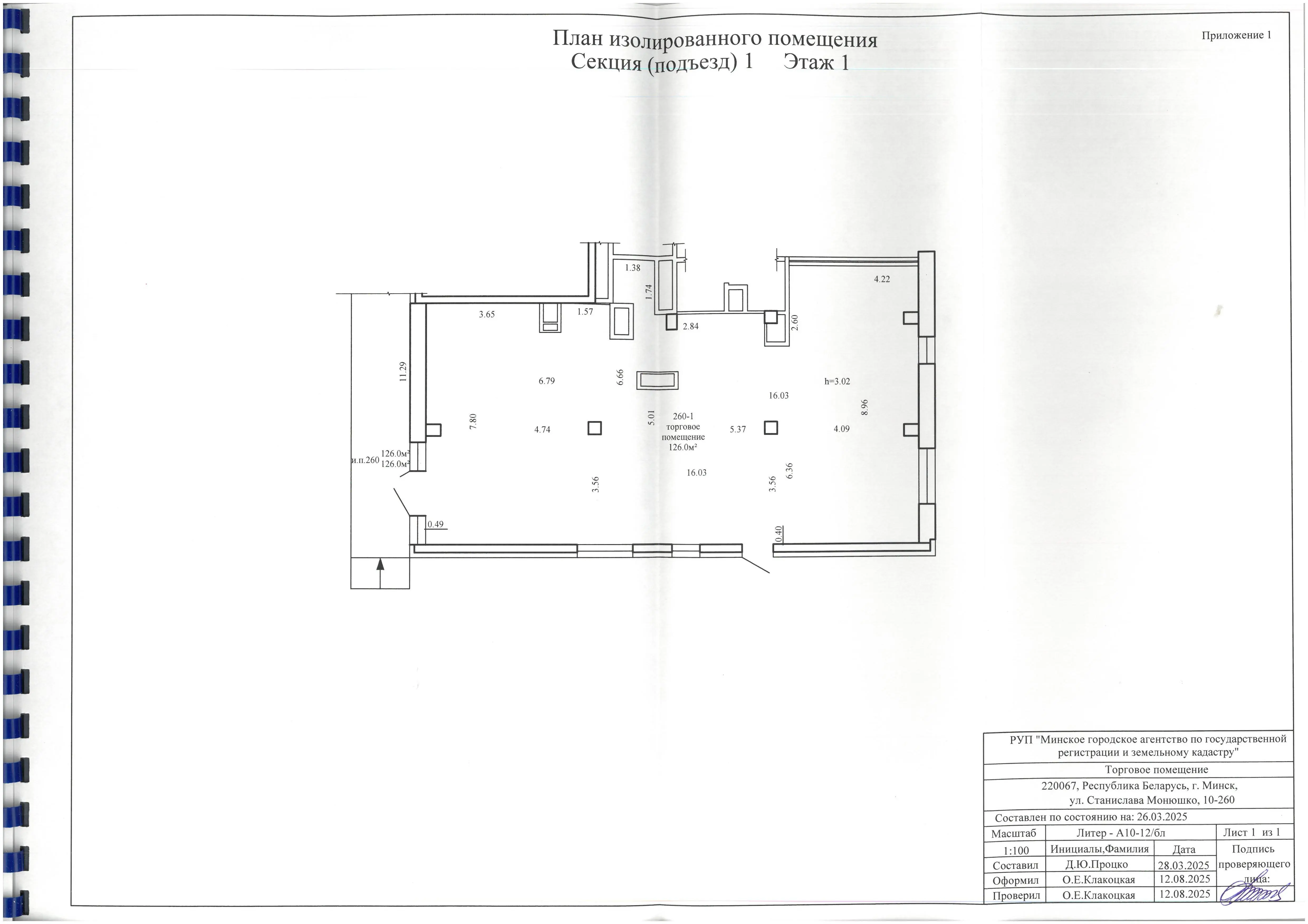
| 1 | Изолированное помещение с инв. № 500/D-7988245682, расположенное по адресу: г. Минск, ул. Станислава Монюшко, 10-260, общая площадь – 126.0 кв. м, назначение, наименование – торговое помещение;
машино-место с инв. № 500/D-7988245725, расположенное по адресу: г. Минск, ул. Станислава Монюшко, 6-478, общая площадь – 14,3 кв. м, назначение – машино-место. |
320 569,75 | 32 000,00 | |
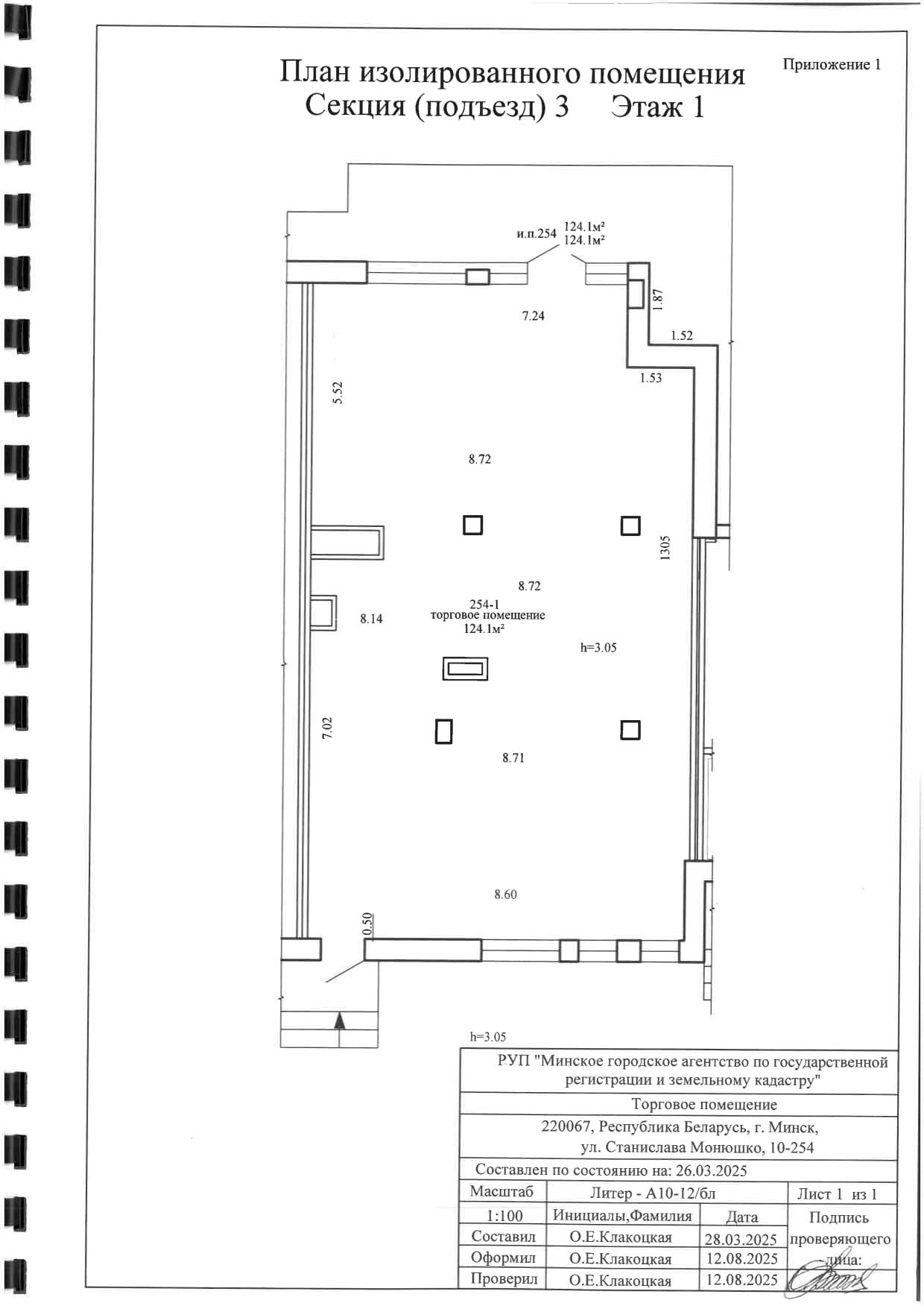
| 2 | Изолированное помещение с инв. № 500/D-7988245680, расположенное по адресу: г. Минск, ул. Станислава Монюшко, 10-254, общая площадь – 124.1 кв. м, назначение, наименование – торговое помещение;
машино-место с инв. № 500/D-7988245732, расположенное по адресу: г. Минск, ул. Станислава Монюшко, 6-436, общая площадь – 13.7 кв. м, назначение – машино-место. |
313 304,66 | 31 000,00 | |
| 3 | Изолированное помещение с инв. № 500/D-7988245679, расположенное по адресу: г. Минск, ул. Станислава Монюшко, 10-253, общая площадь – 163.2 кв. м, назначение, наименование – торговое помещение;
машино-место с инв. № 500/D-7988245728, расположенное по адресу: г. Минск, ул. Станислава Монюшко, 6-480, общая площадь – 13.7 кв. м, назначение – машино-место. |
405 104,75 | 40 000,00 | |
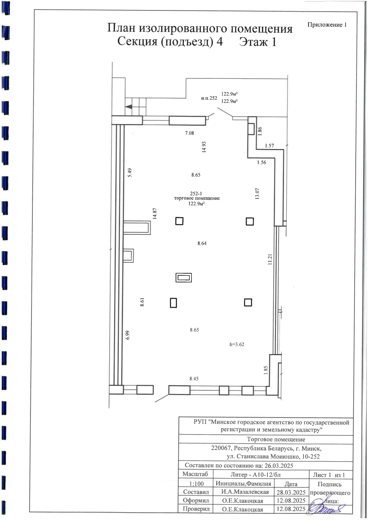
| 4 | Изолированное помещение с инв. № 500/D-7988245678, расположенное по адресу: г. Минск, ул. Станислава Монюшко, 10-252, общая площадь – 122.9 кв. м, назначение, наименование – торговое помещение;
машино-место с инв. № 500/D-7988245726, расположенное по адресу: г. Минск, ул. Станислава Монюшко, 6-435, общая площадь – 13.9 кв. м, назначение – машино-место. |
307 652,27 | 30 000,00 | |
| 5 | Изолированное помещение с инв. № 500/D-7988245677, расположенное по адресу: г. Минск, ул. Станислава Монюшко, 10-251, общая площадь – 143.1 кв. м, назначение, наименование – торговое помещение;
машино-место с инв. № 500/D-7988245724, расположенное по адресу: г. Минск, ул. Станислава Монюшко, 6-479, общая площадь – 13.7 кв. м, назначение – машино-место. |
354 418,73 | 35 000,00 | |
| 6 | Изолированное помещение с инв. № 500/D-7988245687, расположенное по адресу: г. Минск, тр-т Игуменский, 13-414, общая площадь – 223.1 кв. м, назначение – помещение финансового назначения, наименование – отделение сбербанка;
машино-место с инв. № 500/D-7988245729, расположенное по адресу: г. Минск, ул. Станислава Монюшко, 6-433, общая площадь – 14.3 кв. м, назначение – машино-место. |
566 526,17 | 56 000,00 | |
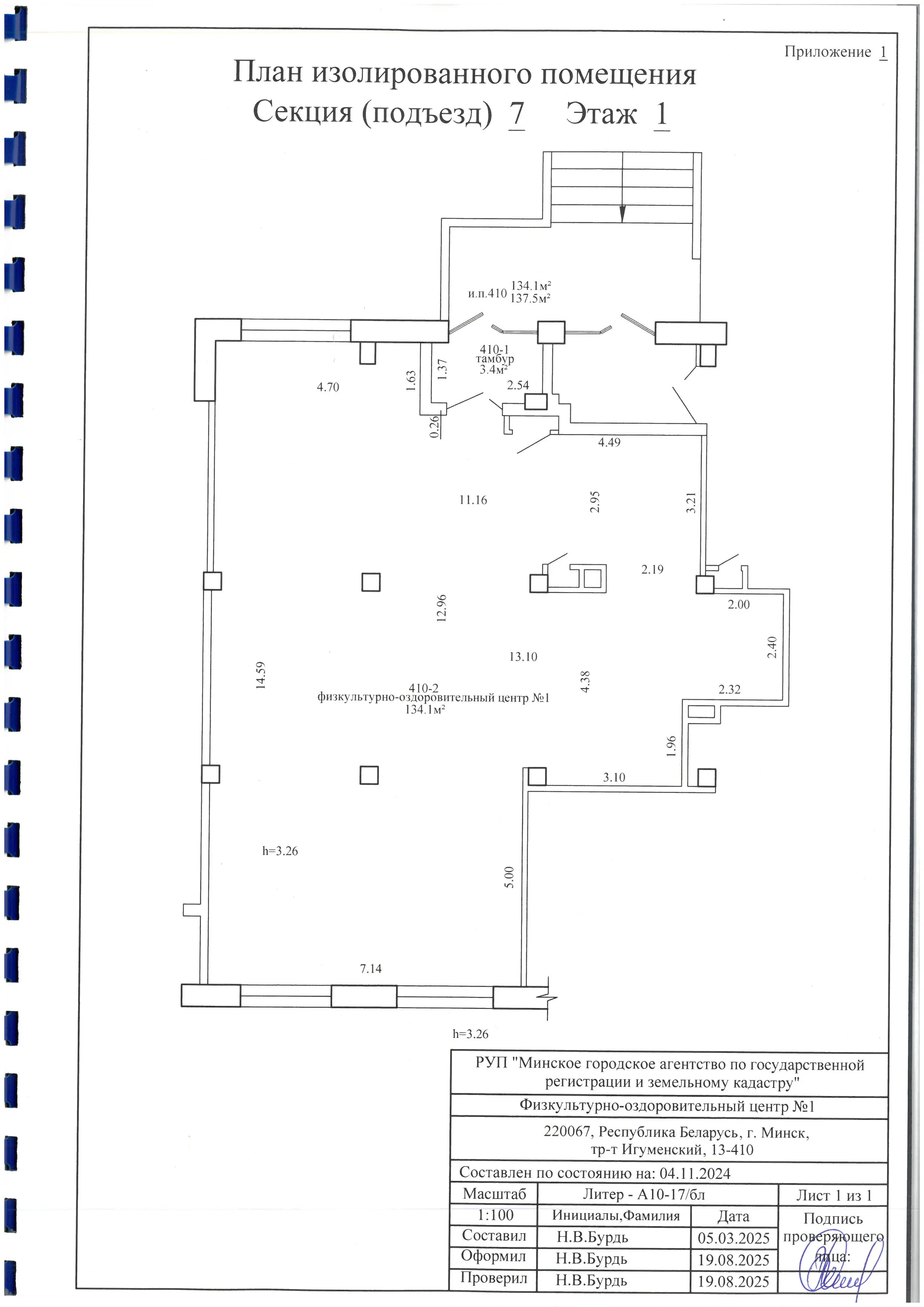
| 7 | Изолированное помещение с инв. № 500/D-7988245685, расположенное по адресу: г. Минск, тр-т Игуменский, 13-410, общая площадь – 137.5 кв. м, назначение – помещение физкультурно-оздоровительного и (или) спортивного назначения, наименование – физкультурно-оздоровительный центр №1;
машино-место с инв. № 500/D-7988245733, расположенное по адресу: г. Минск, ул. Станислава Монюшко, 6-482, общая площадь – 14.1 кв. м, назначение – машино-место. |
382 442,98 | 38 000,00 | |
| 8 | Изолированное помещение с инв. № 500/D-7988245684, расположенное по адресу: г. Минск, тр-т Игуменский, 13-409, общая площадь – 156.8 кв. м, назначение – помещение физкультурно-оздоровительного и (или) спортивного назначения, наименование – физкультурно-оздоровительный центр №2;
машино-место с инв. № 500/D-7988245727, расположенное по адресу: г. Минск, ул. Станислава Монюшко, 6-434, общая площадь – 14.4 кв. м, назначение – машино-место. |
409 559,58 | 40 000,00 | |
| 9 | Изолированное помещение с инв. № 500/D-7988245686, расположенное по адресу: г. Минск, тр-т Игуменский, 13-412, общая площадь – 129.4 кв. м, назначение – административно-торговое помещение, наименование – административно-торговое помещение №3;
машино-место с инв. № 500/D-7988245731, расположенное по адресу: г. Минск, ул. Станислава Монюшко, 6-477, общая площадь – 14.3 кв. м, назначение – машино-место. |
346 342,63 | 34 000,00 | |
| 10 | Изолированное помещение с инв. № 500/D-7988245683, расположенное по адресу: г. Минск, тр-т Игуменский, 13-408, общая площадь – 67.3 кв. м, назначение, наименование – административное помещение. | 171 209,23 | 17 000,00 | |

Продавец имущества: УП «УКС Мингорисполкома», 220030, г. Минск, ул. Советская, 17; тел.: (17) 353 58 45.
Организатор торгов: государственное предприятие «МГЦН», 220030, г. Минск, ул. К. Маркса, 39, к. 10,
тел.: (017) 360 42 22.
Форма проведения торгов: открытый аукцион на повышение начальной цены.
Порядок проведения торгов определен Положением о порядке организации и проведения аукционов (конкурсов) по продаже отдельных объектов, находящихся в государственной собственности, утвержденным постановлением Совета Министров Республики Беларусь от 12.07.2013 № 609 (далее – Положение).
Торги проводятся 14 мая 2026 года в 11.00 по адресу: г. Минск, ул. К. Маркса, 39, зал аукционов. Организатор торгов имеет право отказаться от их проведения в любое время, но не позднее чем за три календарных дня до наступления даты проведения аукциона.
Приём документов, а также консультации по вопросам участия в торгах осуществляются по 12.05.2026 включительно в рабочие дни с 9.00 до 13.00 и с 14.00 до 17.00 (по пятницам – до 16.00) по адресу: г. Минск, ул. К.Маркса, 39, каб. 6. Заявления, поступившие после установленного срока, не принимаются.
Порядок оформления участия в торгах:
К участию в торгах допускаются юридические лица и индивидуальные предприниматели Республики Беларусь, иностранные юридические лица, граждане Республики Беларусь, иностранные граждане, лица без гражданства, внесшие в срок, установленный для приема документов на участие в торгах, на указанный текущий (расчетный) банковский счет сумму задатка (задатков) по соответствующему предмету торгов, подавшие организатору торгов в указанный в извещении срок заявление на участие в торгах с приложением всех необходимых документов, заключившие с организатором торгов соглашение о правах, обязанностях и ответственности сторон в процессе подготовки и проведения торгов, зарегистрированные в журнале регистрации заявлений на участие в торгах и получившие билеты участников торгов с указанием даты регистрации заявления.
К заявлению прилагаются:
При подаче документов заявитель (его представитель) предъявляет документ, удостоверяющий личность, а руководитель юридического лица – также документ, подтверждающий его полномочия (приказ о назначении на должность руководителя, или заверенная выписка из решения общего собрания, правления либо иного органа управления юридического лица в соответствии с учредительными документами, или трудовой договор (контракт), или соответствующий гражданско-правовой договор, или иные документы в соответствии с законодательством).
Порядок проведения торгов:
Перед началом торгов их участники обязаны зарегистрироваться у организатора торгов и обменять билеты участников торгов на аукционные номера, которые возвращаются организатору торгов после их окончания.
Аукцион проводит аукционист, определяемый организатором торгов. Не допускаются начало торгов и продажа предмета аукциона по начальной цене. В процессе торгов начальная цена повышается в соответствии с шагом аукциона, который определяется аукционистом в пределах от 5 до 15 процентов от предыдущей названной аукционистом цены. Аукцион продолжается до тех пор, пока по новой объявленной аукционистом цене продажи предмета аукциона аукционный номер не поднимет только один его участник. Данный участник объявляется победителем торгов, наивысшая цена (цена продажи) фиксируется в протоколе о результатах торгов. Если заявление на участие в торгах подано только одним участником или для участия в нем явился только один участник, комиссией по проведению торгов принимается решение о продаже предмета торгов этому участнику при его согласии по начальной цене, увеличенной на 5 процентов. В ходе торгов участники могут предлагать свою цену за продаваемое имущество в соответствии с Положением.
Обязанности победителя торгов (единственного участника торгов):
Телефоны для справок: отдел аукционов – (017) 360 42 22; (017) 365 48 36; УП «УКС Мингорисполкома» (по вопросам осмотра предметов торгов) – +375 333-98-20-00, +37544-571-50-00.
Извещение о проведении торгов размещено на сайтах: организатора торгов – www.mgcn.by (раздел «Аукционы/Недвижимость в собственность»); Минского городского исполнительного комитета – www.minsk.gov.by (раздел «Продажа/Аренда»); Государственного комитета по имуществу Республики Беларусь – www.gki.gov.by (раздел «ПРОДАЖА/АРЕНДА ИМУЩЕСТВА»).